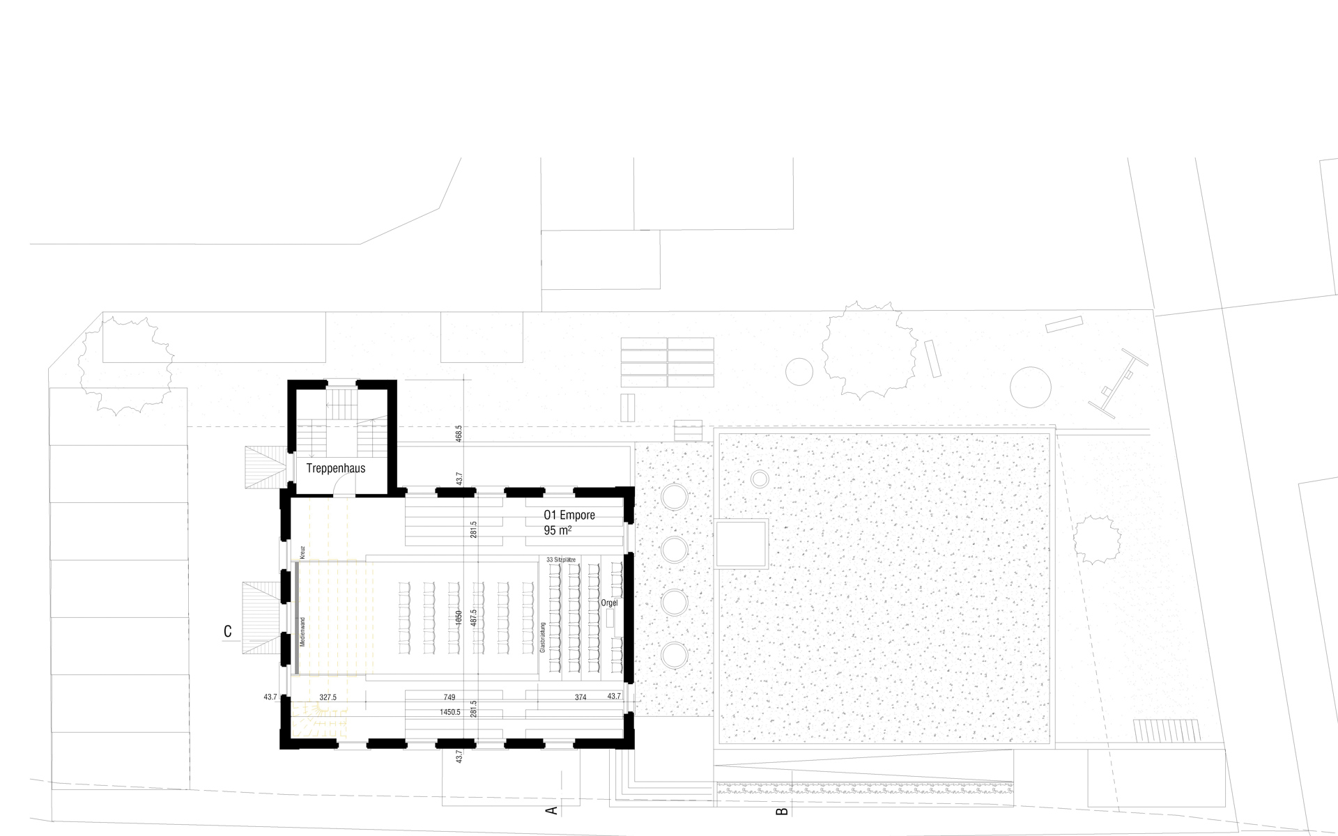
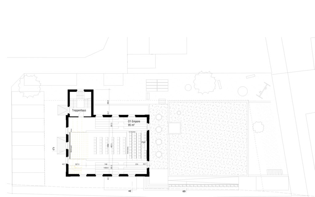
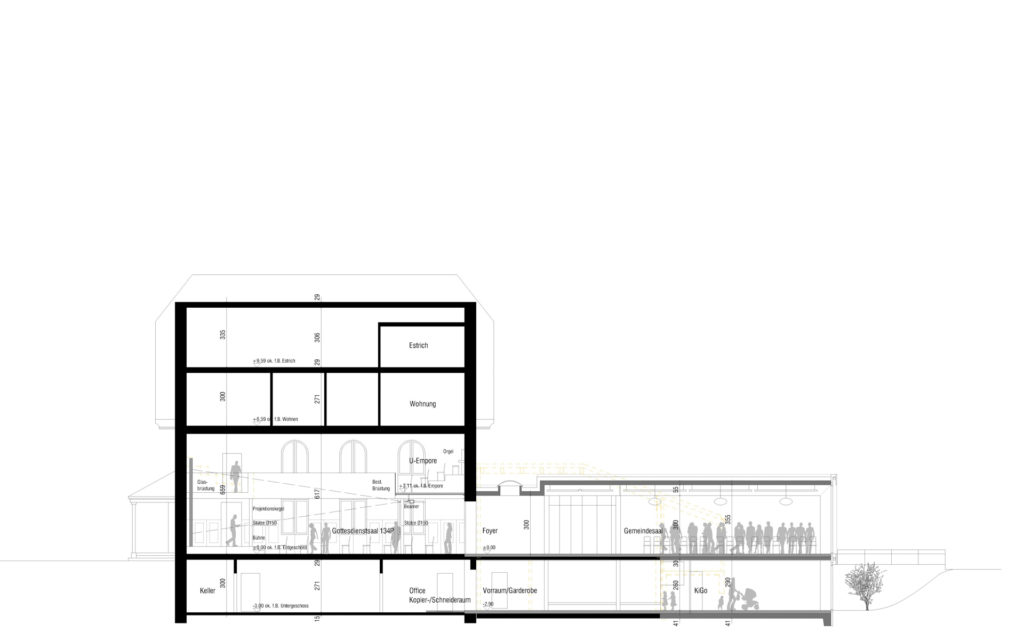
Die Waldeggkapelle wurde 1927 erbaut und ist Im Bauinventar der Gemeinde Interlaken als erhaltenswert eingestuft. Ein respektvoller, sorgfältiger Umgang mit der bestehenden Bausubstanz und dem alten Kirchenraum war bei der Umgestaltung sehr wichtig. Die Bauaufgabe bestand darin, die funktionalen Anforderungen in ein überzeugendes räumliches Erscheinungsbild zu übertragen, das auch die kirchliche Mystik zum Ausdruck bringt.
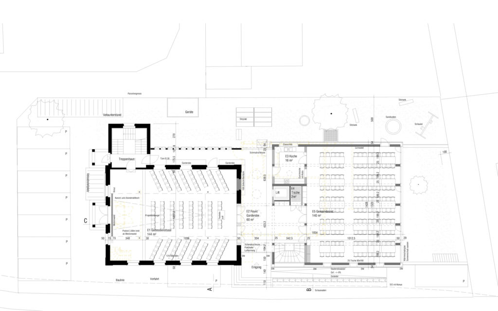
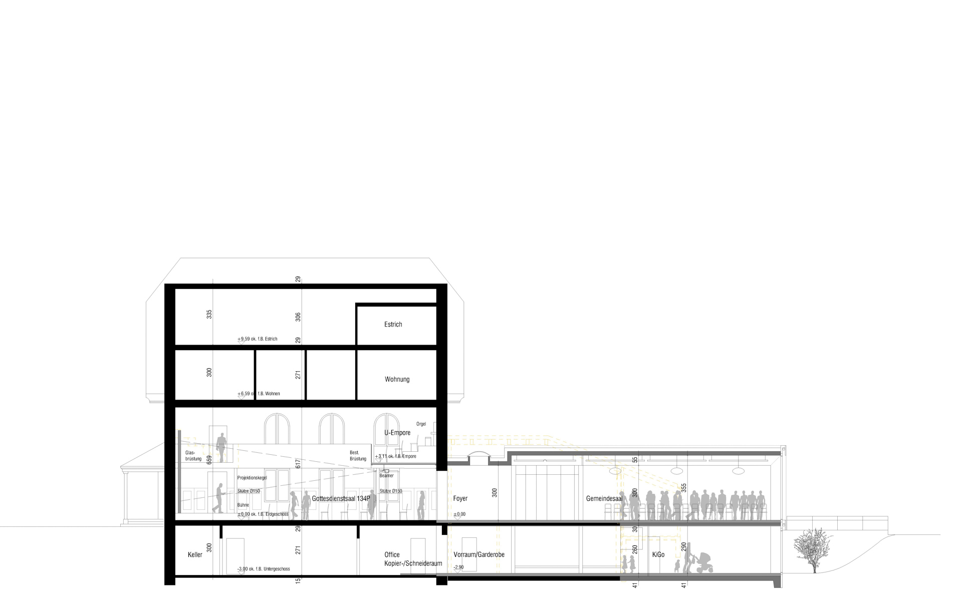
Der Neubau ist im südlichen Bereich der Parzelle platziert. Die Architektursprache des Neubaus ist modern und zeitgemäss. Trotzdem bildet er mit dem bestehenden Kirchenbau eine gut lesbare bauliche Einheit. Über einen einladenden, grosszügigen Eingangsbereich zwischen Alt- und Neubau werden alle kirchlichen Räumlichkeiten erschlossen. Im Erdgeschoss des Neubaus befindet sich der polyvalent nutzbare Gemeindesaal. Der bestehende Gottesdienstraum wurde um 180 Grad gedreht und vom neu gestalteten Eingangsbereich her zugänglich. Bei der unter Denkmalschutz stehenden Kirche ist es selbstverständlich, dass alle neuen Gestaltungselemente auf das vorhandene Raumgefüge, wie beispielsweise die Brüstungstäfer, Beleuchtung usw., abgestimmt wurden. Der Neubau ist von der Materialisierung her bewusst einfach und zurückhaltend gestaltet. Die neuen Räume im Untergeschoss werden durch den begehbaren Lichthof belichtet. Somit gelangt man von den Schulungsräumen direkt ins Freie.
Das realisierte Projekt ist im Bewusstsein entstanden, die optimale Lösung mit knappen Mitteln zu finden. Die Planer haben entsprechend auf jegliche Extravaganzen verzichtet und nur das Wesentliche, für den Bau unabdingbare geplant und realisiert.
Fotografie: L2A Architekten AG
Bauherr: Evangelisch- Methodistische Kirche/ Status: Realisiert / Jahr: 2012 / Art: Kapelle / Standort: Interlaken BE / Planung und Bau: 2005-12