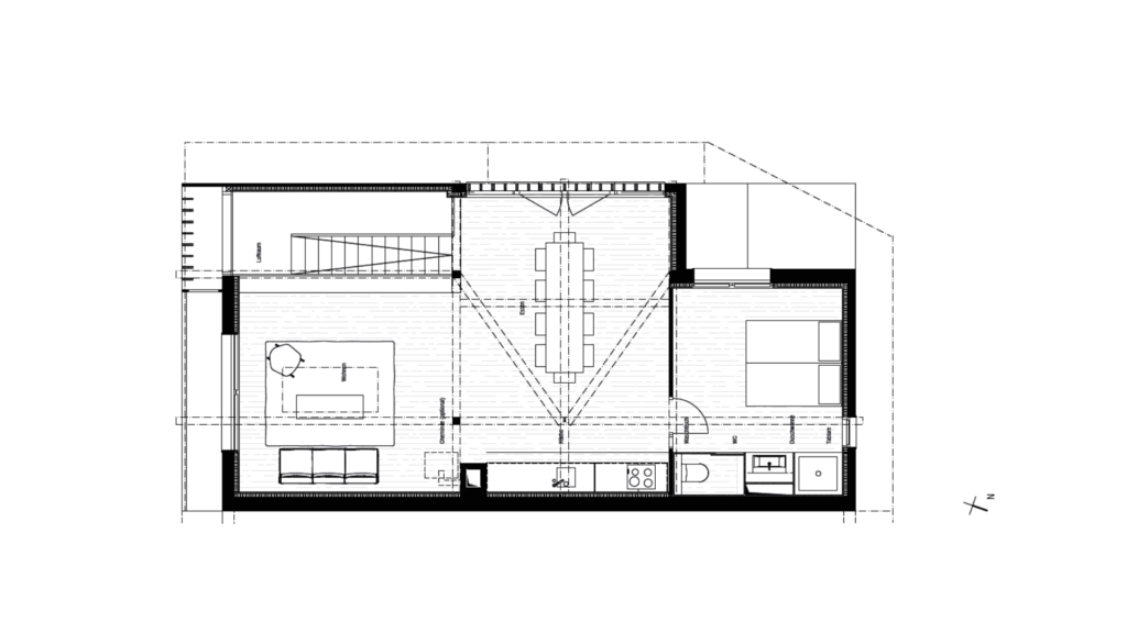
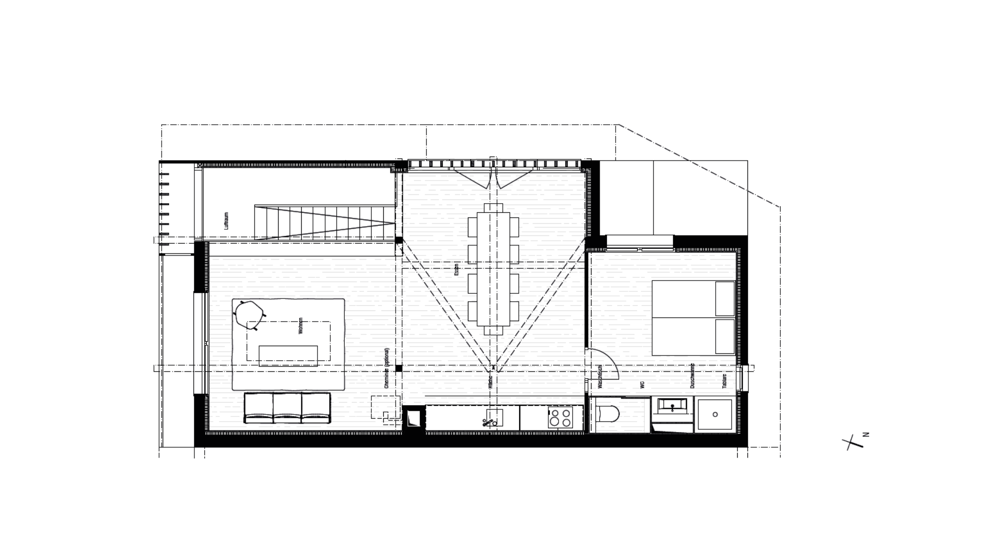
Bauherr: Privat / Status: Realisiert / Jahr: 2012/ Art: Wohnhaus / Standort: Grindelwald BE / Planung und Bau: 2012- 2013