Projekte
Projektverzeichnis
Wohnen
Gesundheit
Bildung & Kultur
Öffentlich
Bauen im Bestand
Industrie & Gewerbe
Infrastrukturbauten
Denkmalpflege
Tourismus & Sport
Wettbewerbe
Schäfer & L2A Architekten
Über uns
Kontakt
News
Schäfer & L2A
Projekte
Über uns
Kontakt
News
Schäfer & L2A
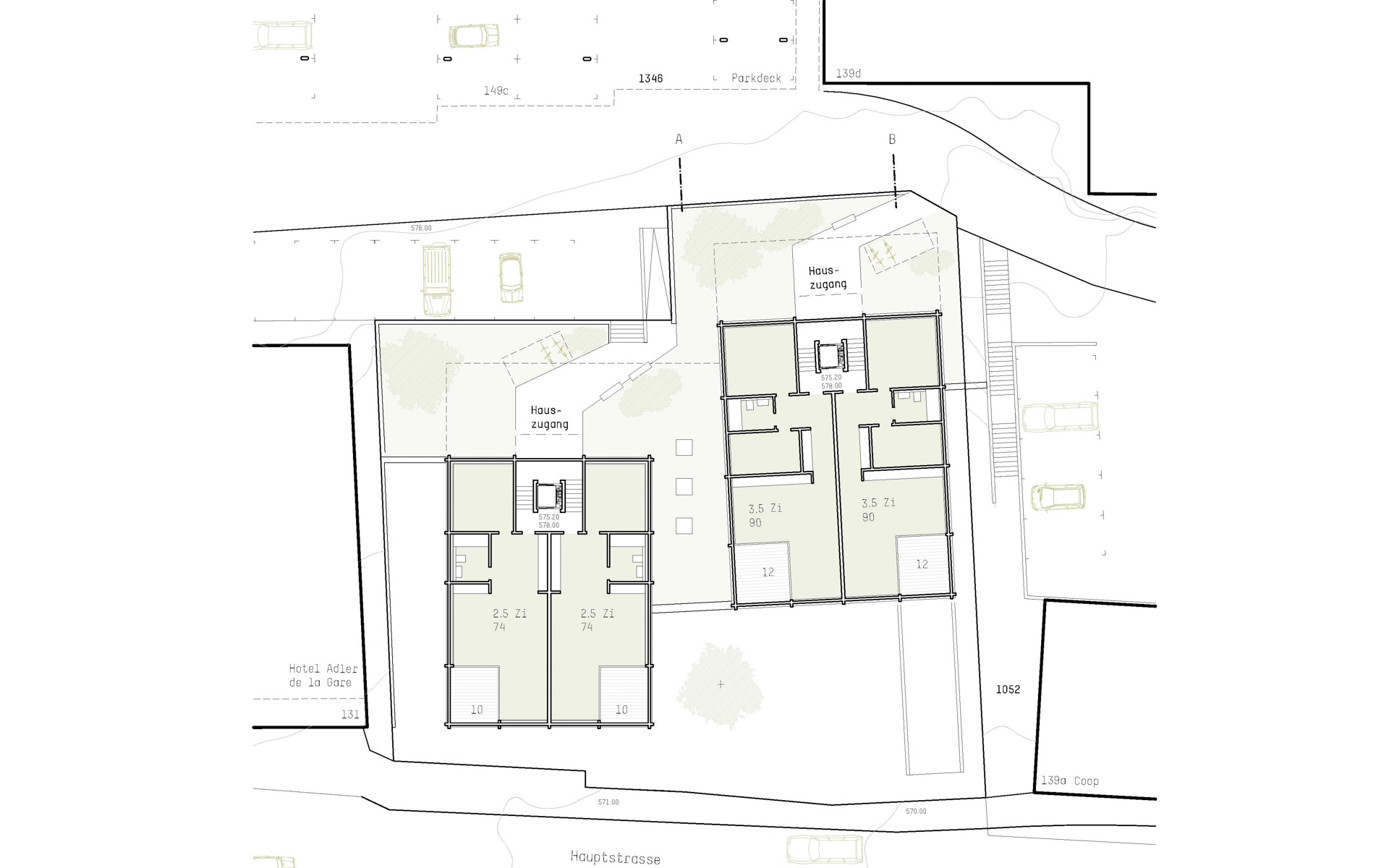
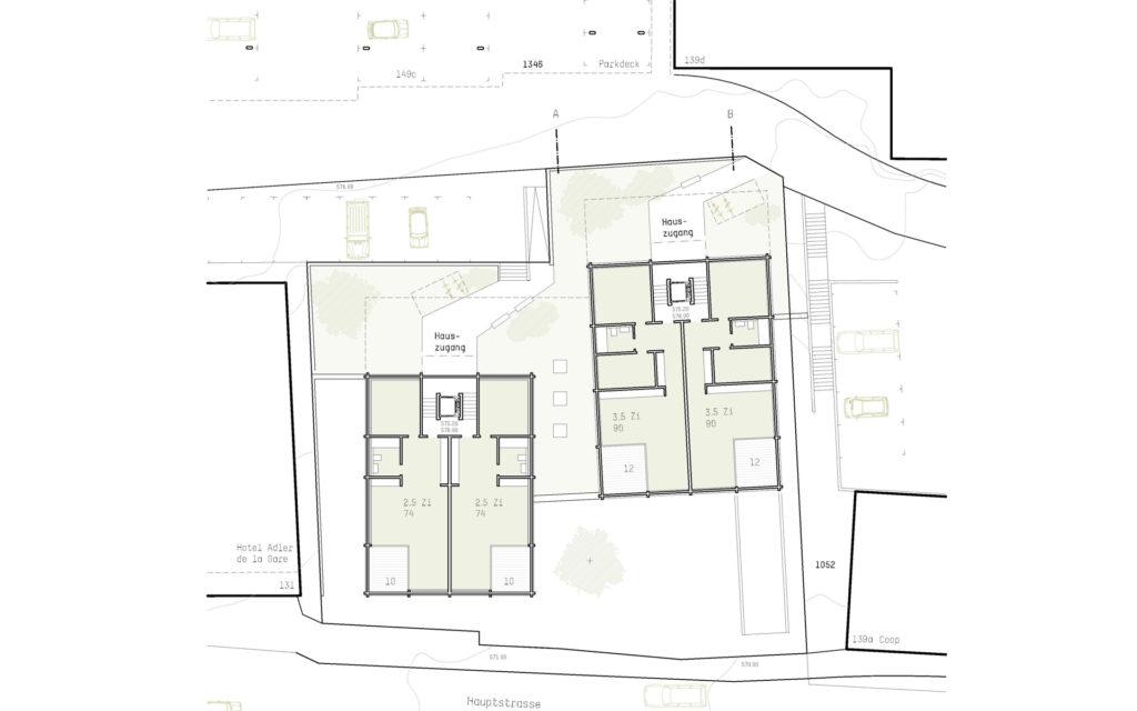
2015 Projektwettbewerb BBO Tracht
Holzfleckenbau im Schnitzlerdorf
Projektwettbewerb:
2015 – 1. Rang/1.Preis
Übersicht