Raiffeisenbank Lauterbrunnen

Wohnlichkeit und Kundennähe

Studienauftrag:  2014- 1. Rang/1.Preis

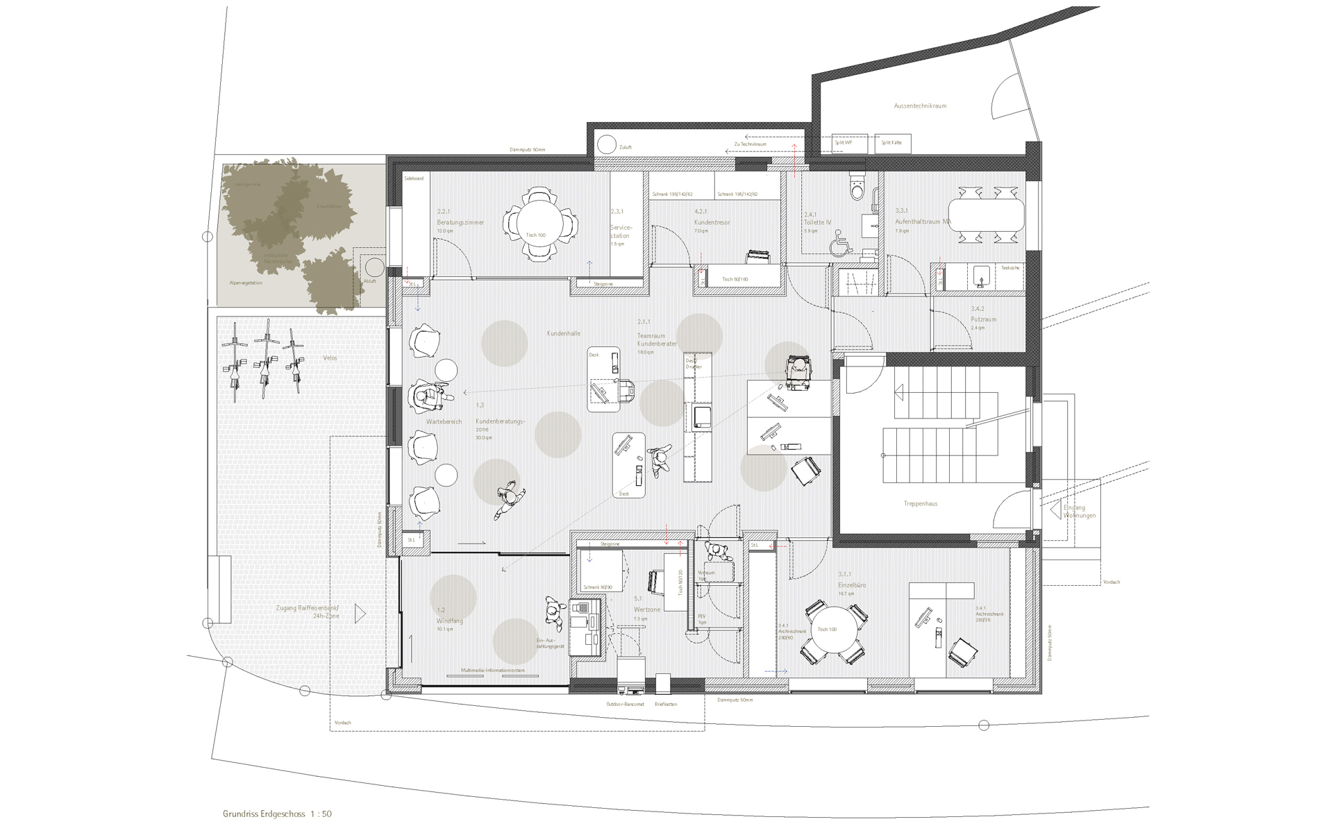
Die Zielsetzung des Entwurfs ist eine effiziente, klar strukturierte Bank, welche in ihrer Ausgestaltung die alte „Stubenbank“ zitiert und damit eine hohe Wohnlichkeit ausstrahlt.

Das äussere Erscheinungsbild mit seiner Chaletarchitektur bleibt bestehen. Durch die Verschiebung des Bankeingangs auf die obere Seite erhält die Hauptfassade des Gebäudes zum Dorf hin mehr Präsenz. Das Sockelgeschoss wurde neu eingeteilt und befenstert. Die Bankräume erhielten einen „Inlay“ aus hochwertigem Weisstannenholz an Wänden und Decke und einen geschliffenen Hartbetonboden. Es wurde die Verbindung zwischen der Erinnerung an das urtümliche Bergchalet mit der zeitgenössischen Formensprache und Belichtung angestrebt.

Bauherr: Raiffeisenbank Lütschinentäler / Status: realisiert / Jahr: 2016/ Art: Dienstleistung/ Standort: Lauterbrunnen BE / Planung und Bau: 2016