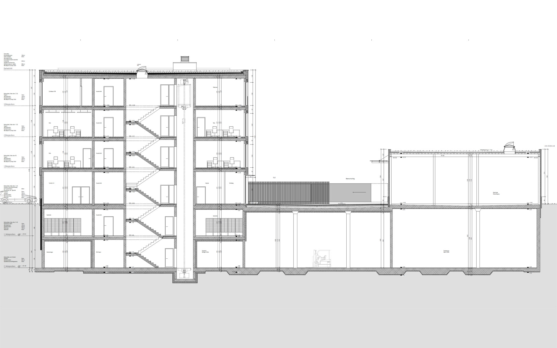
Der Neubau des Erhaltungs- und Interventionszentrum (EIZ) liegt im Gebiet des Entwicklungsschwerpunktes der Gemeinde Ostermundigen. Die Situierung der Gebäudee nimmen Rücksicht auf die künftige Entwicklung des Areals. Das Gebäudekonglomerat besteht aus einem viergeschossigen Dienstgebäude und einem eingeschossigen Nebengebäude. Zeitgemässes und der Nachhaltigkeit verpflichtetes Bürogebäude. Der Entwurf reagiert mit einer soliden Grundstruktur auf die gewünschte Nutzungsflexibilität in Bezug auf künftige Mieteranpassungen. Eine Organisation mit einer bewährten Typologie, sowie direkt ab dem Gebäudekern erschlossenen Bürogeschossen. Neben Büroarbeitsplätzen entstehen auch Schlaf- und Aufenthaltsräume, Werkstätten und Garderoben. Das Untergeschoss wird Platz für Logistikflächen bieten. Im Aussenraum entstehen Lagerflächen sowie die betriebsnotwendigen 55 Parkplätze. Das Dienstgebäude weist einen annähernd quadratischen Grundriss auf, was die Gebäudehülle auf ein Minimum reduziert. Die Materialisierung der Fassaden mit Klinker und Streckmetall reagiert auf die Gleisnähe und garantiert eine gewisse Langlebigkeit.
Das EIZ Ostermundigen wird Stützpunkt für den Lösch- und Rettungszug, der im Bedarfsfall im Grossraum Bern andere Züge abschleppt und viele weitere Einsätze leistet. Im EIZ wird neu auch der Geschäftsbereich Instandhaltung für die Region stationiert, welcher für Bau- und Unterhaltsarbeiten von Gleisen, Weichen, Signalen und Fahrleitungen zuständig ist. Auch ein Teil der dafür notwendigen Schienenfahrzeuge wird im EIZ abgestellt. Mit dem Neubau des EIZ gewährleistet die SBB den Betrieb und Unterhalt sowie die Sicherheit der Gleisinfrastruktur in der Region Bern.
Das neue EIZ ermöglicht die Zusammenführung der bisherigen Standorte in einem Gebäude. Dadurch werden Synergien genutzt, Prozesse und Abläufe optimiert und die Zusammenarbeit vereinfacht. Inskünftig werden rund 200 Mitarbeitende im EIZ Ostermundigen arbeiten.
Bauherr: SBB AG / Status: Realisiert / Jahr: 2017-18 / Art: Infrastruktur / Standort: Ostermundigen BE / Planung und Bau: 2004-18
Arbeitsgemeinschaft mit brönnimann architekten ag, Interlaken