2012 Studienauftrag Wohnhäuser Seefeld Thun

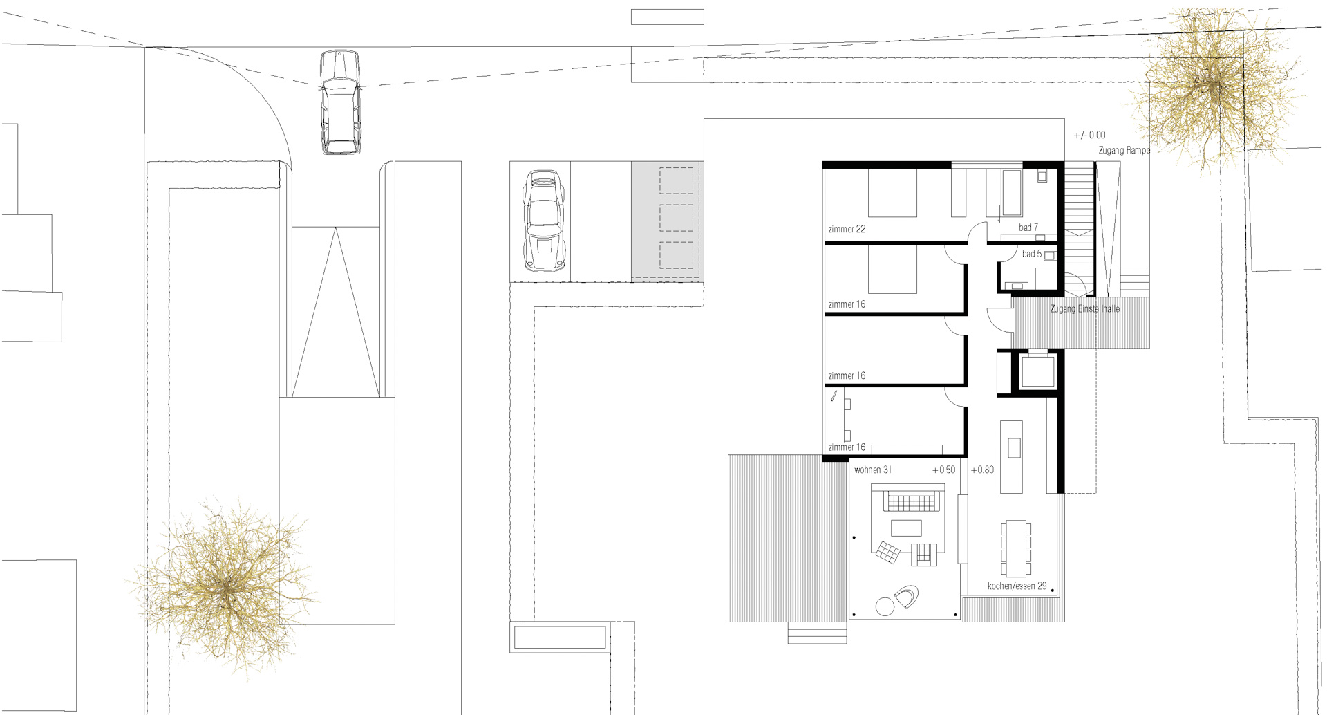
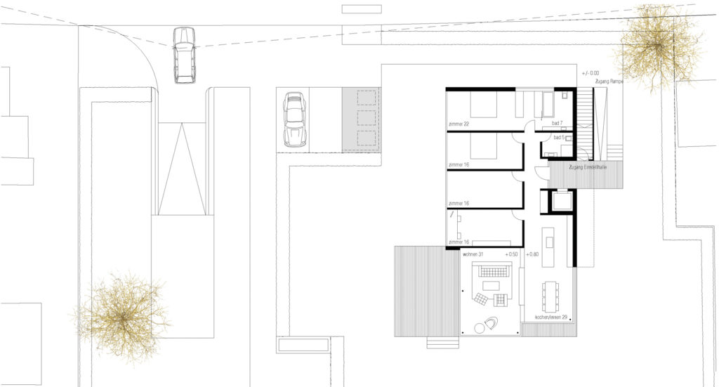
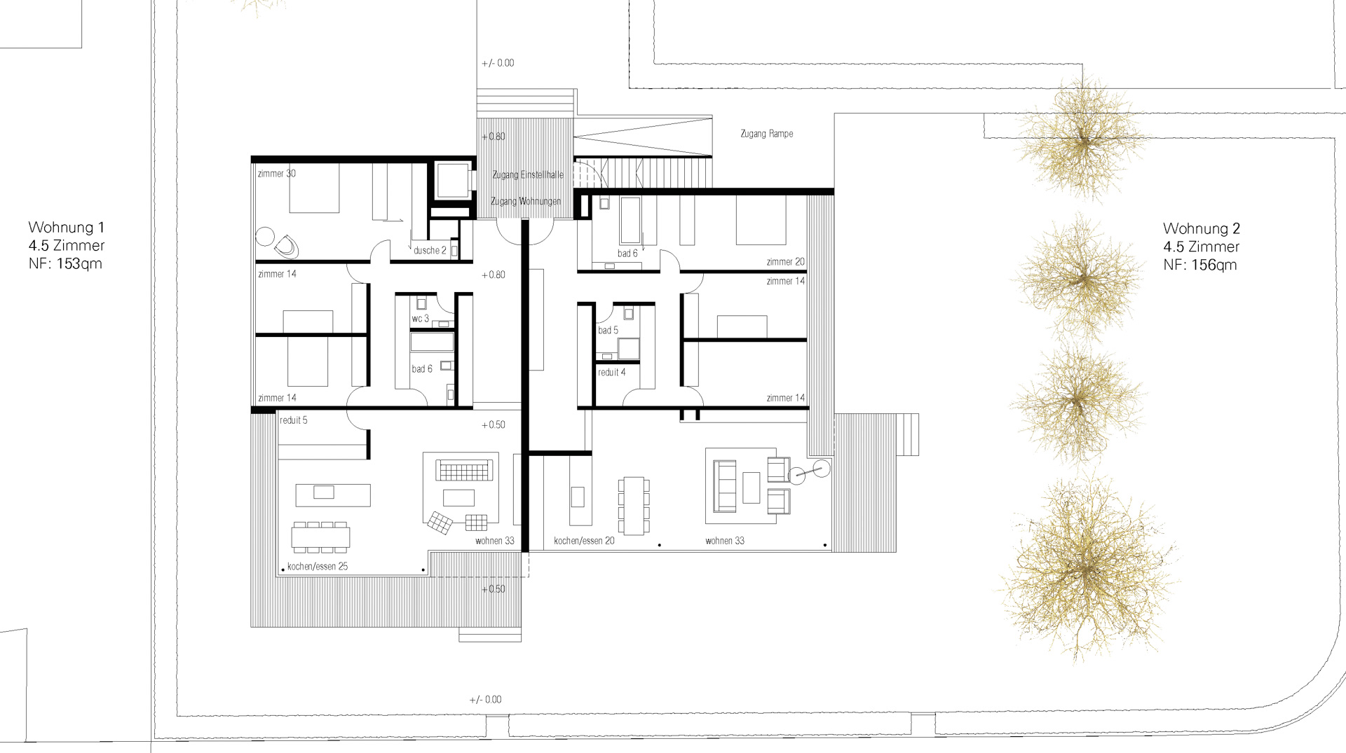
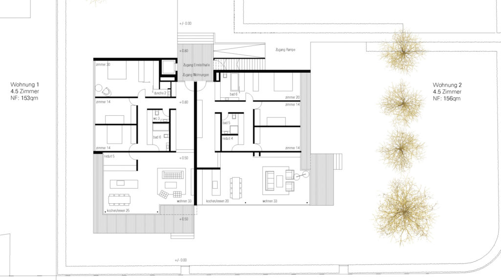
Der Uferstreifen zwischen See und Seestrasse ist gekennzeichnet durch seine lockere Bebauungsstruktur zum Einen und dem Baumbestand in unmittelbarer Ufernähe. Zum villenartigen Haupthaus gesellen sich jeweils verschiedene Nebengebäude wie Garagen oder Bootshäuser. Über die strassenseitige Parzelle spannt sich eine schachbrettartige Struktur auf aus Baukörpern und Raumkörpern (Freiräumen). Die Bauvolumen sind so gesetzt, dass jedes Gebäude möglichst grosse Freiflächen vorgelagert erhält. Auf der Hauptparzelle werden so ein Doppelhaus und ein Einzelhaus mit halber Grundfläche positioniert. Ein drittes Bauvolumen flankiert auf dem Seeseitigen Baufeld den privaten Gehweg zum Seeufer. Damit wird die Analogie zur Angrenzenden Bebauungstypologie (Haupthaus, Gärtnerhaus und Bootshaus) interpretiert.

Status: Studienauftrag / Jahr: 2012/ Art: Wohnbauten/ Standort:  Thun BE